Opole, CzarnowÄ…sy

Działka na sprzedaż

8 317,00 m2 180,35 zÅ‚/m2

1 500 000 zł

oferta na wyłączność

Opis nieruchomości

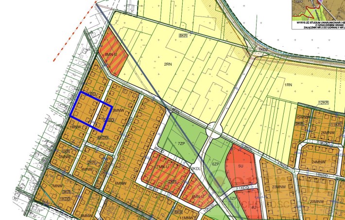
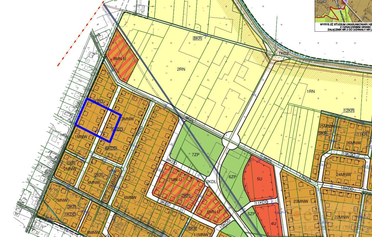
Prawie hektarowa działka z projektem podziału, zlokalizowana w Opolu-Czarnowąsach, w spokojnej części tej dzielnicy (ul. Podleśna), w której powstaje nowa zabudowa wolnostojących budynków mieszkalnych.

Projekt podziału przewiduje powstanie 9 działek o  kształcie regularnych prostokątów i powierzchniach od 770 do 877m2 oraz działki stanowiącej drogę dojazdową.

Dostępne media to: prąd, woda i kanalizacja.

Dla przedmiotowego terenu został już przedstawiony projekt Miejscowego Planu Zagospodarowania Przestrzennego (rozpatrzono już wniesione uwagi), w którym określono m.in.: 


przeznaczenie terenu: teren zabudowy mieszkaniowej jednorodzinnej wolnostojącej


wskaźniki wykorzystania terenu:

- nadziemna intensywność zabudowy od 0,2 do 0,4
- maksymalna intensywność zabudowy 0,5
- maksymalny udział powierzchni zabudowy 25
- minimalny udział powierzchni biologicznie czynnej 40% (do bilansowania dopuszcza się 10% udziału powierzchni biologicznie czynnej położonej na tarasach, dachach, stropodachach)

parametry zabudowy:
- maksymalna wysokość budynków z dachem stromym do 10m
- maksymalna wysokość budynków z dachem płaskim do 5
- liczba kondygnacji nadziemnych budynków do 2


dachy:
- strome dwuspadowe i wielospadowe o jednakowym kącie nachylenia połaci w przedziale 30º-45º
- dopuszcza się dachy jednospadowe  lub płaskie na części budynku, jednakże nie mogą one przekraczać 50% powierzchni zabudowy
- pokrycie dachów stromych w odcieniach kolorów czerwonego, brązowego lub grafitowego


W 2020 roku wydane zostały warunki zabudowy dla inwestycji: budowa zespołu budynków mieszkalnych jednorodzinnych, budowa drogi wewnętrznej, budowa odcinków sieci kanalizacji sanitarnej, wodociągowej i elektroenergetycznej.

 
Jeśli zainteresowała Cię ta oferta i masz pytania, to zachęcam do kontaktu: Marek Wolnicki   tel. 604 977 338  ,  77 457 57 77

Nota prawna

Opis oferty zawarty na stronie internetowej sporządzany jest na podstawie oględzin nieruchomości oraz informacji uzyskanych od właściciela, może podlegać aktualizacji i nie stanowi oferty określonej w art. 66 i następnych K.C.

Szczegóły

Symbol oferty CMW-GS-392
Powierzchnia 8 317 m²

Podobne oferty

Działka na sprzedaż - Opole, Gosławice
działka na sprzedaż - Opole, Gosławice

WIT-GS-1239

Opole, Gosławice
działka na sprzedaż

2 452 m²

1 069 000 zł
435,97 zÅ‚/m2
Dodaj
do notatnika
Działka na sprzedaż - Opole, Malina
działka na sprzedaż - Opole, Malina

WIT-GS-1186

Opole, Malina
działka na sprzedaż

12 697 m²

1 190 000 zł
93,72 zÅ‚/m2
Dodaj
do notatnika
Działka na sprzedaż - Opole, Winów
działka na sprzedaż - Opole, Winów

WIT-GS-1130

Opole, Winów
działka na sprzedaż

9 534 m²

1 350 000 zł
141,60 zÅ‚/m2
oferta na wyłączność
Dodaj
do notatnika
Działka na sprzedaż - Opole
działka na sprzedaż - Opole

KOR2-GS-651

Opole
działka na sprzedaż

11 769 m²

1 500 000 zł
127,45 zÅ‚/m2
oferta specjalna
Dodaj
do notatnika
PLN
PLN
PLN
PLN
PLN
PLN
PLN
%
PLN
PLN
PLN

PLN

Dane:

PLN
%

Wynik:

PLN
pierwsza rata
ostatnia rata

Napisz do nas

Proszę wypełnić to pole
Proszę wypełnić to pole
Proszę wypełnić to pole
Proszę wypełnić to pole
Trwa wysyłanie...

Ta strona wykorzystuje pliki cookies w celach statystycznych oraz w celu dostosowania naszych serwisów do indywidualnych potrzeb klientów. Zmiany ustawień dotyczących plików cookie można dokonać w dowolnej chwili modyfikując ustawienia przeglądarki. Korzystanie z tej strony bez zmian ustawień dotyczących cookies oznacza, że będą one zapisane w pamięci urządzenia.

rozumiem